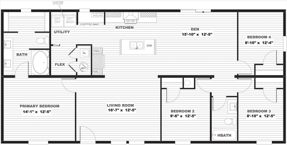
Homes | Boone