Homes | Marvelous 3
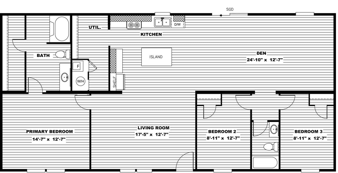
3 bedrooms
2 full bathrooms
1,475 sq. ft.
28' x 56'
Construction
- I - Beam: 12” or 10” model specific - Outriggers: 96” spacing - Crossmembers: 96” spacing - Header: (Front/Rear) Flush, not recessed - Axles: Spread (no equalizers) overslung mounted - Brake Axles: Two, except where more are mandatory by state DOT - Hitch Beam: 8” Detachable Hitch
- I - Beam: 12” or 10” model specific - Outriggers: 96” spacing - Crossmembers: 96” spacing - Header: (Front/Rear) Flush, not recessed
- Axles: Spread (no equalizers) overslung mounted - Brake Axles: Two, except where more are mandatory by state DOT M&R Mobile Homes
Affordable homes at your fingertips
Get started with M&R Mobile Homes
Find, design, and order your next home in a few clicks.
Sign up Property map Enter your address or APN to check if this home fits on your property
- I - Beam: 12” or 10” model specific - Outriggers: 96” spacing - Crossmembers: 96” spacing - Header: (Front/Rear) Flush, not recessed - Axles: Spread (no equalizers) overslung mounted - Brake Axles: Two, except where more are mandatory by state DOT - Hitch Beam: 8” Detachable Hitch - Joists: 2x6 / 16” O.C. - Vinyl: Challenger Linoleum by Shaw® throughout home - Decking: 19/32” 4x8 OSB T&G - Vinyl Siding: Standard - Sheathing: WZ I - Thermoply Structural Sheathing - Exterior Faucet - Shutters: Front Door Side Windows - Shingles: 25 year - 3 tab - Trusses: 24” O.C. spacing - Sheathing: 7/16” OSB - Insulation: Blown Fiberglass - Ceiling: Textured - Ceiling Slope: Vault/Flat Ceiling - Attic Ventilation: Static & Ridge Vents
3 bedrooms
2 full bathrooms
1,475 sq. ft.
28' x 56'
- Hitch Beam: 8” Detachable Hitch Other
- HUD Code - 20 lb. Roof Load Std., 30 psf optional - Wind Zone I Std., Zones II optional - Thermal Zone 3 Standard
- HUD Code - 20 lb. Roof Load Std., 30 psf optional
- Wind Zone I Std., Zones II optional - Thermal Zone 3 Standard Construction
- Joists: 2x6 / 16” O.C. - Vinyl: Challenger Linoleum by Shaw® throughout home - Decking: 19/32” 4x8 OSB T&G
- Joists: 2x6 / 16” O.C. - Vinyl: Challenger Linoleum by Shaw® throughout home
- Decking: 19/32” 4x8 OSB T&G Exterior
- Vinyl Siding: Standard - Sheathing: WZ I - Thermoply Structural Sheathing - Exterior Faucet - Shutters: Front Door Side Windows - Shingles: 25 year - 3 tab - Trusses: 24” O.C. spacing - Sheathing: 7/16” OSB - Insulation: Blown Fiberglass - Ceiling: Textured - Ceiling Slope: Vault/Flat Ceiling - Attic Ventilation: Static & Ridge Vents
- Vinyl Siding: Standard - Sheathing: WZ I - Thermoply Structural Sheathing - Exterior Faucet - Shutters: Front Door Side Windows - Shingles: 25 year - 3 tab - Trusses: 24” O.C. spacing
- Sheathing: 7/16” OSB - Insulation: Blown Fiberglass - Ceiling: Textured - Ceiling Slope: Vault/Flat Ceiling - Attic Ventilation: Static & Ridge Vents Other
- Front door: Steel front door with Storm - Rear door: Out Swing 9-Lite Door - Interior doors: White 6-Panel Door - Windows: LUX Thermal Pane Low E Vinyl, size per prints
- Front door: Steel front door with Storm - Rear door: Out Swing 9-Lite Door
- Interior doors: White 6-Panel Door - Windows: LUX Thermal Pane Low E Vinyl, size per prints Other
- Water Heater: 40 gallon Rheem® electric + dual element - Kitchen Sink: Stainless Steel, dbl bowl - Lavatory Sinks: Plastic - Faucets: Pfister® Metal Faucets - Master Bath: 54” ABS Plastic Tub - Hall Bath: 54” ABS Plastic Tub - Whole House Water Shut Off - Ice Maker Ready
- Water Heater: 40 gallon Rheem® electric + dual element - Kitchen Sink: Stainless Steel, dbl bowl - Lavatory Sinks: Plastic - Faucets: Pfister® Metal Faucets
- Master Bath: 54” ABS Plastic Tub - Hall Bath: 54” ABS Plastic Tub - Whole House Water Shut Off - Ice Maker Ready Mechanical
- Heat: Carrier® Electric (gas optional) - Ductwork: Metal duct wrapped with insulation - Thermostat: Ecobee3 Lite Smart Thermostat - Load Center: 200 amp (100 amp allowed when gas option ordered – gas range and gas furnace) - Exterior Receptacles: (1) GFI recept and cover - Interior Receptacles and Switches: White, self contained - Phone Jack(s): None - AC: Conduit - LED Light Bulbs installed - Wire & Brace for Ceiling Fan, LR only
- Heat: Carrier® Electric (gas optional) - Ductwork: Metal duct wrapped with insulation - Thermostat: Ecobee3 Lite Smart Thermostat - Load Center: 200 amp (100 amp allowed when gas option ordered – gas range and gas furnace) - Exterior Receptacles: (1) GFI recept and cover
- Interior Receptacles and Switches: White, self contained - Phone Jack(s): None - AC: Conduit - LED Light Bulbs installed - Wire & Brace for Ceiling Fan, LR only Construction
- Exterior Wall Construction: 2x4, 16” O.C. spacing - Ext. Wall Height Sidewall 7’-0”, Endwall 7’-0” (combo vault/flat ceiling, per prints) - Interior Wall Construction: 2x3, 24” O.C. spacing (per print) - Wall Coverings: 3/8” paper on gyp - Wall Coverage at Closets: 3/8” gyp, raw
- Exterior Wall Construction: 2x4, 16” O.C. spacing - Ext. Wall Height Sidewall 7’-0”, Endwall 7’-0” (combo vault/flat ceiling, per prints)
- Interior Wall Construction: 2x3, 24” O.C. spacing (per print) - Wall Coverings: 3/8” paper on gyp - Wall Coverage at Closets: 3/8” gyp, raw Interior
- Cabinets: DuraCraft® (duracraftcabinets.com) - Countertops (All): Wilsonart® Laminant (TRU Select) - Backsplash: None - Closet Shelving: ClosetMaid® – vinyl wrapped metal - Utility Shelving: above washer/dryer - Refrigerator: Frigidaire® 18’ Top Freezer - Range: Frigidaire® 30” Electric/Gas Option - Frigidaire® 24” Dishwasher - Range Hood: 30”, 100 cfm min, vent through sidewall
- Cabinets: DuraCraft® (duracraftcabinets.com) - Countertops (All): Wilsonart® Laminant (TRU Select) - Backsplash: None - Closet Shelving: ClosetMaid® – vinyl wrapped metal - Utility Shelving: above washer/dryer
- Refrigerator: Frigidaire® 18’ Top Freezer - Range: Frigidaire® 30” Electric/Gas Option - Frigidaire® 24” Dishwasher - Range Hood: 30”, 100 cfm min, vent through sidewall Other
OPTIONS AVAILABLE 1. Upgraded In Swing Rear Door w/ Storm 2. Wind Zone II, OSB not included 3. Ice Dam Protection 4. Gas Option: Range and Furnace only (100 or 200 amp) 5. 30# roof load, 16” O.C. Trusses 6. OSB Wrap 7. Smart Panel Siding
OPTIONS AVAILABLE 1. Upgraded In Swing Rear Door w/ Storm 2. Wind Zone II, OSB not included 3. Ice Dam Protection
4. Gas Option: Range and Furnace only (100 or 200 amp) 5. 30# roof load, 16” O.C. Trusses 6. OSB Wrap 7. Smart Panel Siding
- Exterior Wall Construction: 2x4, 16” O.C. spacing
- Ext. Wall Height Sidewall 7’-0”, Endwall 7’-0”
(combo vault/flat ceiling, per prints)
- Interior Wall Construction: 2x3, 24” O.C. spacing (per print)
- Wall Coverings: 3/8” paper on gyp
- Wall Coverage at Closets: 3/8” gyp, raw
- I - Beam: 12” or 10” model specific - Outriggers: 96” spacing - Crossmembers: 96” spacing - Header: (Front/Rear) Flush, not recessed - Axles: Spread (no equalizers) overslung mounted - Brake Axles: Two, except where more are mandatory by state DOT - Hitch Beam: 8” Detachable Hitch - Joists: 2x6 / 16” O.C. - Vinyl: Challenger Linoleum by Shaw® throughout home - Decking: 19/32” 4x8 OSB T&G - Vinyl Siding: Standard - Sheathing: WZ I - Thermoply Structural Sheathing - Exterior Faucet - Shutters: Front Door Side Windows
- Shingles: 25 year - 3 tab - Trusses: 24” O.C. spacing - Sheathing: 7/16” OSB - Insulation: Blown Fiberglass - Ceiling: Textured - Ceiling Slope: Vault/Flat Ceiling - Attic Ventilation: Static & Ridge Vents - Exterior Wall Construction: 2x4, 16” O.C. spacing - Ext. Wall Height Sidewall 7’-0”, Endwall 7’-0” (combo vault/flat ceiling, per prints) - Interior Wall Construction: 2x3, 24” O.C. spacing (per print) - Wall Coverings: 3/8” paper on gyp - Wall Coverage at Closets: 3/8” gyp, raw - Cabinets: DuraCraft® (duracraftcabinets.com) - Countertops (All): Wilsonart® Laminant (TRU Select) - Backsplash: None - Closet Shelving: ClosetMaid® – vinyl wrapped metal - Utility Shelving: above washer/dryer - Refrigerator: Frigidaire® 18’ Top Freezer - Range: Frigidaire® 30” Electric/Gas Option - Frigidaire® 24” Dishwasher - Range Hood: 30”, 100 cfm min, vent through sidewall
- Cabinets: DuraCraft® (duracraftcabinets.com) - Countertops (All): Wilsonart® Laminant (TRU Select) - Backsplash: None - Closet Shelving: ClosetMaid® – vinyl wrapped metal - Utility Shelving: above washer/dryer
- Refrigerator: Frigidaire® 18’ Top Freezer - Range: Frigidaire® 30” Electric/Gas Option - Frigidaire® 24” Dishwasher - Range Hood: 30”, 100 cfm min, vent through sidewall
Images of homes are solely for illustrative purposes and should not be relied upon. Images may not accurately represent the actual condition of a home as constructed, and may contain options which are not standard on all homes.
Thrill 3 Bed | 2 Bath | 1,475 Sq. Ft. | 28' x 56'
3 Bed | 2 Bath | 1,264 Sq. Ft. | 28' x 48'
3 Bed | 2 Bath | 1,038 Sq. Ft. | 14' x 76'
4 Bed | 2 Bath | 1,475 Sq. Ft. | 28' x 56'